| ID nehnuteľnosti | S_RH0219 |
| Typ nehnuteľnosti | Rodinný dom / Vila |
| Lokalita na mape | Av. Azahar, 4, 03189 Orihuela, Alicante, Španielsko |
| Cena (€) | 196 559 EUR (Cena zahŕňa realitnú províziu) |
| Dispozice | 4+kk |
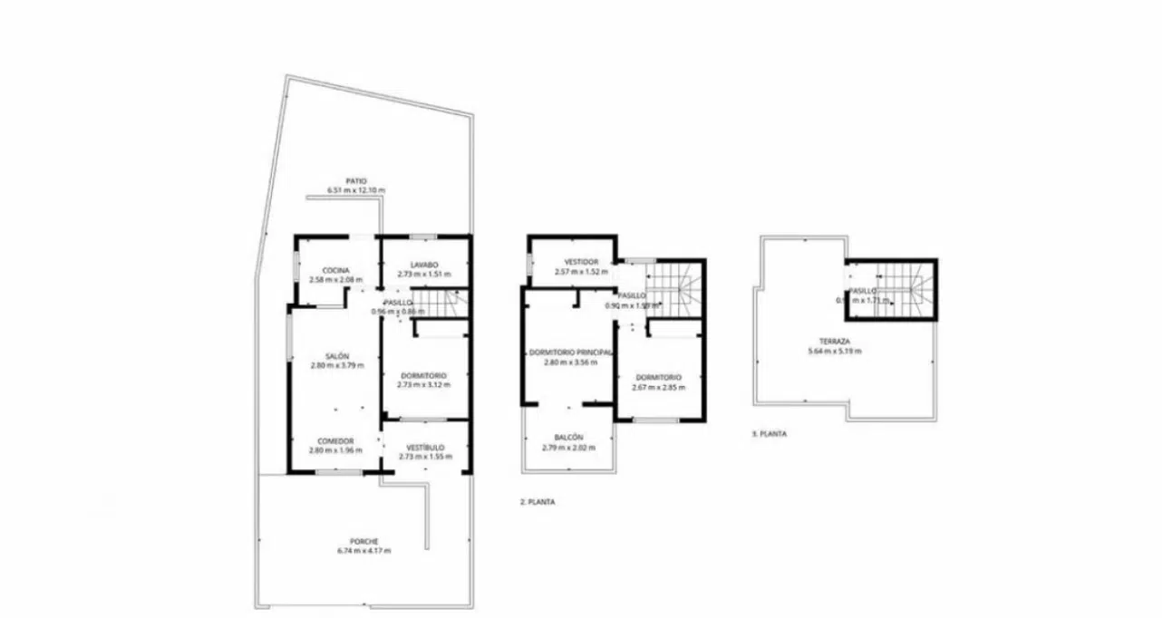
| Obyvateľná plocha (m2) | 131 m2 |
| Počet spální | 3 |
| Počet kúpeľní | 2 |
| Počet podlaží | 2 |
| Poloha objektu | Radový |
| Kategórie domu | Rodinný |
| Zastavaná plocha (m2) | 60 m2 |
| Pozemok / podlahová plocha bytu (m2) | 85 m2 |
| Celková plocha (m2) | 131 m2 |
Referenčné číslo: S_RH0219
Realitná kancelária Relax Properties vám ponúka na predaj poschodový radový dom v krásnej lokalite Orihuela Costa, len pár minút od pláže Playa Flamenca, Costa Blanca.
Ponúkame na predaj moderne riešený dom s obytnou plochou 131 m² a pozemkom 85 m², ktorý je ideálny ako dovolenkové bývanie alebo trvalé bývanie pri mori.
Dom disponuje 3 spálňami, 2 kúpeľňami, priestrannou obývacou izbou s kuchyňou a súkromným strešným soláriom, ideálnym na celodenné slnenie a vonkajšie posedenie s výhľadom do okolia. Súčasťou komplexu je aj spoločný bazén, ktorý poskytuje komfort a relax pre celú rodinu.
Lokalita je v blízkosti pláže Playa Flamenca, reštaurácií, obchodov a kompletnej občianskej vybavenosti, čím zabezpečuje pohodlný život pri mori počas celého roka.
Základné údaje:
Typ nehnuteľnosti: duplex / semi-detached house
Obytná plocha: 131 m²
Pozemok: 85 m²
Spálne: 3
Kúpeľne: 2
Rok výstavby: 2001
Solárium: súkromné
Spoločný bazén: áno
Lokalita: Orihuela Costa, blízko Playa Flamenca
Výhody nehnuteľnosti:
Súkromné solárium
Komunitný bazén
Blízko pláže a občianskej vybavenosti
Ideálne na dovolenku aj trvalé bývanie
Cena nehnuteľnosti: 196.560 €
Táto nehnuteľnosť je vhodná ako rodinné bývanie pri mori, dovolenková rezidencia alebo investícia s potenciálom prenájmu v jednej z vyhľadávaných oblastí Costa Blanca.
Komplexné služby a pomoc pri kúpe
Relax Properties poskytuje kompletný servis a asistenciu počas celého procesu kúpy nehnuteľnosti v Španielsku.
V oblastiach Costa Blanca a Costa del Sol máme česky a slovensky hovoriacich kolegov, ktorí vás bezpečne prevedú celým procesom kúpy bez starostí.
Ak ste nenašli nehnuteľnosť podľa svojich predstáv, neváhajte nás kontaktovať – radi vám pripravíme ponuku na mieru.
Relax Properties – Váš spoľahlivý partner pri kúpe nehnuteľností v Španielsku.
Týmto by som chcela poďakovať a odporučiť pána Dvořáka a jeho pani všetkým, ktorí chcú kúpiť nehnuteľnosť v zahraničí,za absolútne profesionálne sprostredkovanie kúpy bytu v Bulharsku,všetko podľa mojich predstáv a hlavne všetko je tak ako hovorí pán Dvořák,človek sa nemusí vôbec o nič starať,ešte raz veľmi pekne ďakujem😀🙏🏝️🏖️👍
Som rád, že môžem napísať túto recenziu na našu bezproblémovú kúpu bytu v Bulharsku s realitnou spoločnosťou Relax Properties s.r.o. Predaj prebehol hladko a sprevádzala ho dobrá a transparentná komunikácia. Realitná spoločnosť nám od začiatku až do konca procesu predaja poskytla skvelý servis. Ich tím bol vždy veľmi ústretový a priateľský, a to ako pri osobných stretnutiach, tak aj pri elektronickej komunikácii. Komunikácia bola priebežne aktualizovaná a žiadne informácie nám neboli zatajené, čo nám dodalo istotu a dôveru v celý proces. Predaj bytu bol zvládnutý precízne a profesionálne. Všetky potrebné dokumenty boli predložené včas a bez zbytočných prieťahov. Vďaka transparentnosti a podrobnému vysvetleniu nám bol proces predaja veľmi zrozumiteľný a neboli sme vystavení žiadnym nejasnostiam. Realitný tím bol dobre informovaný o právnych aspektoch spojených s predajom nehnuteľnosti a dokázal odpovedať na všetky naše otázky. Ich odborné znalosti a schopnosť vysvetliť nám všetky detaily v našom jazyku boli veľkým prínosom pre celý proces. Celkovo sme s kúpou bytu s touto realitnou spoločnosťou veľmi spokojní. Predaj prebehol bez problémov a tím bol vždy k dispozícii a poskytoval informácie. Túto realitnú spoločnosť odporúčame pre jej kvalitné služby, profesionalitu a transparentnosť pri predaji nehnuteľností v zahraničí.
Skvelá spolupráca, všetko prebehlo hladko a bez problémov. Nebolo potrebné nikam chodiť a tráviť hodiny na úradoch, všetko prebiehalo elektronicky. Túto spoločnosť môžem vrelo odporučiť, gratulujem a ďakujem za spoluprácu.
Chcela by som sa Vám veľmi pekne poďakovať za ochotu, ústretovosť, výbornú komunikáciu a môžem len odporučiť spoločnosť Relax Properties s.r.o, najmä pána Dvořáka, s ktorým som komunikovala najmä pri kúpe bytu v Bulharsku. Všetko, na čom sme sa dohodli, bolo splnené, vždy bol veľmi ochotný, reakcia na otázky bola takmer okamžitá. Ak váhate nad kúpou bytu, určite túto spoločnosť vrelo odporúčam.
V septembri 22 som sa rozhodol kúpiť byt v Bulharsku pri mori. Aj po kúpe apartmánu mi pán Dvořák ochotne pomohol s ďalšími "detailmi".
Určite odporúčam realitnú kanceláriu. Veľmi profesionálna práca a ústretovosť pána Aleša Dvořáka je zárukou spokojnosti pri realizácii kúpy nehnuteľnosti. Všetky kroky a informácie sú podávané jasne a zrozumiteľne. Skrátka "SKVELÉ".
Maximálna spokojnosť, poradenstvo aj po kúpe nehnuteľnosti v zahraničí
Veľmi si vážim prácu pána Aleša Dvořáka, ktorý bol s nami od prvej myšlienky kúpy bytu v Bulharsku. Pozorne si vypočul naše požiadavky, čo od nehnuteľnosti očakávame a vybral pre nás vhodné ponuky. Odpovedal na všetky naše otázky, osobný a ústretový prístup človeka, ktorý svoju prácu robí dobre a rád. Ďakujeme a sme s úctou Mirka Barvínková a Jan Bednář